| 価格 | 7,490万円 |
|---|---|
| 交通 | 名鉄瀬戸線「清水(愛知県)」駅 徒歩 7分 |
| 所在地 | 愛知県名古屋市北区大杉 |
| 物件区分 | 分譲住宅 |
| 取引条件の有効期限 | 2026 年 1 月 31 日 |
| 販売区画数 | 1区画 |
| 総区画数 | 3区画 |
GX志向型住宅
ウッドデッキのある家
1/4~1/31まで新春キャンペーン実施中
ご成約特典として30万円相当の家具家電プレゼント
~随時お問合せ受付中~
◇◆AVANTIAクラブ会員募集中◆◇
会員登録で、この物件の詳細・写真等の
限定情報が今すぐ閲覧可能に!
新規会員登録でギフトカードプレゼント!
↓↓ 物件の詳細情報公開中 ↓↓
【最終1区画】
・名鉄瀬戸線「清水」駅徒歩7分
・大杉小徒歩3分・八王子中徒歩10分
AVANTIA 01(ゼロワン)シリーズ
一年を通して快適に暮らせる性能と、
家族の暮らしに長く寄り添うシンプルな住まい。
\ ZEH水準対応の省エネ住宅 /
これからの基準に対応した住まいです。
断熱性・省エネ性に配慮した設計に加え、
太陽光発電システムを標準搭載。
光熱費を抑えながら、快適な暮らしを叶えます。
【住まいのポイント】
・ZEH水準対応
・太陽光発電システム搭載
・住宅性能表示制度 最大5項目で最高等級
・建築物省エネルギー性能表示制度「BELS」取得
性能・デザイン・価格のバランスを大切にした、
“ちょうどいい”をカタチにした住まいです。
見学予約・資料請求 受付中!
間取りや仕様の詳細は、号地詳細ページにてご確認ください。
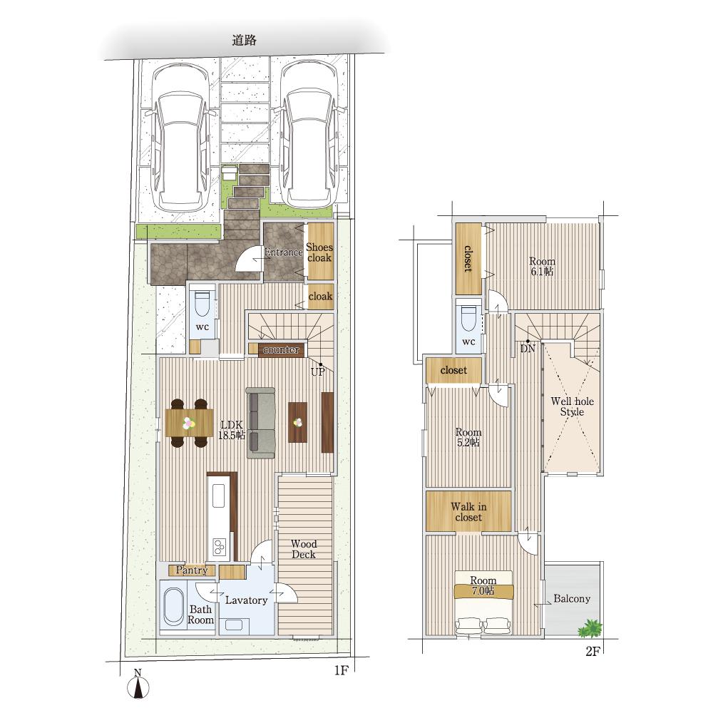
建物間取りポイント
・洗面から出入り可能なウッドデッキ
リビングからも出入り可能で憩いの場となりそうですね
・LDK18.5帖
・リビングにはお子様のスタディスペースとしてやパソコンデスクとしても利用可能な
カウンターテーブル完備
・SCL、WICなど収納豊富
国が定めた基準をクリアした長く安心して住める住宅で、耐久性や省エネ性に優れた設計や設備が特徴です。エネルギー効率が高く、CO2削減に貢献します。また、税金面では住宅ローン減税や固定資産税軽減などの優遇措置があり、経済的にもメリットがあります。
BELSとは「建築物省エネルギー性能表示制度」のことで、新築・既存の建築物の省エネ性能を、第三者評価機関が評価し認定する制度です。取得した家での暮らしは電気代の節約ができるだけでなく、住宅ローン減税や、国や自治体の省エネ住宅に対する補助金などを活用することもできます。
太陽光のエネルギーで電気を創る太陽光発電システムと、創った電気を効率よく使うためのクラウドHEMS、そして大切なエネルギーを無駄にしない省エネアイテムを採用し、環境へ配慮しながら毎月のランニングコストが抑えられます。
GX志向型住宅は、エネルギー効率を最大限に高め、環境負荷を軽減することを目的とした住宅の新しい形です。再生可能エネルギーの利用や高断熱構造を採用し、快適で持続可能な暮らしを実現します。
AVANTIA GXは吹付の断熱材を使用しています。
水を使って発砲するため、ガスが抜けて性能が落ちてしまうことがありません。加えてオゾン層破壊や地球温暖化の原因となるフロンを全く使用しない環境にやさしい断熱材です。
Low-E ガラスは特殊金属膜の効果で優れた断熱効果を発揮します。
夏の強い日差しを60%以上カットし、冷房効果を高めます。



底面は傷が目立ちにくく、奥行きワイドなステンレスシンク。小物置き付きでシンク周りの小物をすっきり収納できます。ストック類や普段使わないものを分類できる機能的な収納のキャビネットはソフトクローズレール仕様で静かにピタッと閉まる、安全な引き出し。



毎日使うハブラシなどの衛生用品や化粧品など、細かなものをそれらのきちんと収納できるミラーキャビネットはLEDライトでお顔映りもバッチリ。またキレイアップ水栓は、水栓が上部にあるので周りに水がたまりにくく、水滴を拭き取るだけで簡単キレイ。



水滴にたっぷりの空気を含ませることで、ボリュームのある浴び心地と節水の両立を実現したシャワーヘッド。特殊な表面処理で汚れが付きにくく落としやすい床は、独自の断熱層で寒い季節でも冷たく感じにくいキレイサーモフロア。取り外して洗える便利なマグネットシェルフも採用しています。



手洗いは吐水口とボウルが滑らかにつながったデザイン。便座もシームレスで便座裏には防汚素材を使用し、お掃除のしやすいフチのないデザインとなっています。また、パワーストリーム洗浄で強力な水流が便器鉢の中のすみずみまでしっかりと回り、少ない水で高い洗浄力を発揮します。



インターネットとモノを繋げるIoTを採用。玄関ドア、電動シャッター、インターホン、給湯器など、毎日使う建材・設備機器との連携や、オプションでカメラや各種センサ等も同じアプリで連携でき便利で快適な暮らしを叶えます。







オーナー様の専用サポートコールセンターでは、24時間365日ご相談を受け付けております。当社のほか、提携業者やメーカーより、急なトラブルに対応できるスタッフ1名が駆けつけて対応措置を行います。特殊な工具や部品を必要としない30分以内の作業であれば、出張費用や対応措置への費用は一切いただきません。
地歴調査と地盤の専門業者が高度な地盤調査を行って、適切な地盤改良が行われた土地に建設されています。しかし、お引渡しから20年の間に地盤の歪みなどによる不同沈下で床が傾いてしまった、などの瑕疵によって建物が損害を受けた場合には、当社規定の保証をいたしております。
築10年以降で起こるのが、目に見えない部分の経年劣化。給排水管の劣化や破損による水漏れや、躯体の傷み・腐食、床下の傷みなどが考えられます。有償ですが、築10年目、20年目当社を通じて必要な補修・修復工事を行っていただくと、さらに10年間の保証期間が延長でき、最大30年まで安心が続きます。
所在地/愛知県名古屋市北区大杉 総敷地面積/322.31m² (97.49坪) 敷地面積/129.74m² (39.24坪) 建物面積/109.47m² (33.11坪) 建ぺい率/60% 容積率/200% 地目/宅地 用途地域/第一種住居地域 都市計画法/市街化区域 構造/木造2階建て 道路/北側幅員約6.0mの公道に接する 駐車場/2台 建築確認番号/確認サービス第KS125-0420-54474号 施設/公営水道・都市ガス・中部電力・公共下水 完成日/2025年12月23日 引渡し可能日/即入居可 その他/準防火 31m高度地区、洪水浸水想定区域、都市再生特別措置法、居住誘導区域内、都市機能誘導区域内 情報更新日/2026年1月23日 次回更新予定日/2026年2月6日
| 所在地 | 愛知県名古屋市北区大杉三丁目705番1 | ||
|---|---|---|---|
| 敷地面積 |
129.74m²
(39.24坪) |
建物面積 | 109.47m²
(33.11坪) |
| 総敷地面積 | 322.31m² (97.49坪) | 建ぺい率 | 60% |
| 容積率 | 200% | 地目 | 宅地 |
| 用途地域 | 第一種住居地域 | 都市計画法 | 市街化区域 |
| 構造 | 木造2階建て | 駐車場 | 2台 |
| 道路 | 北側幅員約6.0mの公道に接する |
||
| 施設 | 公営水道・都市ガス・中部電力・公共下水 | ||
| 建築確認番号 | 確認サービス第KS125-0420-54474号 | 取引態様 | 一般仲介 |
| 完成日 | 2025年12月23日 | 入居可能日 | 即入居可 |
| 売主 | 株式会社AVANTIA (国土交通大臣免許(6)第5803号) | ||
| その他 | 準防火 31m高度地区、洪水浸水想定区域、都市再生特別措置法、居住誘導区域内、都市機能誘導区域内 |
||
| 情報更新日 | 2026年1月23日 | 次回更新 予定日 |
2026年2月6日 |
※「-」と表示されている項目については、情報提供会社にご確認ください。
※「建物30年延長保証」、「建物20年延長保証」は引渡し10年目ごとに有償点検を行い、必要な箇所に有償のメンテナンスの実施したお客様が対象になります。