東海版 トップページ > 物件検索 > 検索結果一覧 > 【AVANTIA 01】豊橋市西橋良町1期
お知らせ
【並列駐車3台可】スーパー・コンビニまで徒歩4分!
『徒歩で暮らせる、ちょうどいい距離間の住まい』
【家具キャンペーン:2025年11月14日(金)~11月30日(日)】
期間中のご成約で約70万円相当のインテリアコーディネートを
まるごとプレゼント!
┏◇◆*。・……・…………・………・……・…┓
会員登録されている方限定で、物件写真公開中!
会員の皆さまには、いち早く物件写真をご覧いただける特別ページをご用意しました。最新情報をお見逃しなく!
[↓ログインして写真を見る↓]
┗…・……・…………・………・……・。*◇◆┛

コンビニまで徒歩3分、スーパーまで徒歩4分、最寄りのバス停まで徒歩5分。子育て中のご家族はもちろん、お子さまが成長して家を出た後も、夫婦二人の穏やかな暮らしにしっかりと寄り添ってくれる立地です。
近くにあるという安心感が、年齢を重ねても“住み慣れたこの場所で”という気持ちを支えてくれます。
コンセプト
↓↓見学予約・詳しい資料は下記ボタンから↓↓
□□物件の特徴□□
■敷地30坪~、5LDKのプランもご用意!
ライフスタイルで選べる全5区画分譲
ライフスタイルや家族構成が多様化する今、
「一人暮らしだけど家賃がもったいないから資産として持ちたい」
「子供が増えて5LDKは必要」
「共働きだから家事ラク動線が必須」
など暮らし方にもとめることも人それぞれ。
この分譲地では、そんな様々な声にしっかりと応えるプランをご用意。一人暮らしにピッタリなコンパクトな間取りから、広さや収納力を確保した住まいなど、それぞれの“ちょうどいい”を叶える住まいをご用意しております。
■車がなくても暮らしやすい
徒歩圏で完結する立地で将来も安心な暮らしを
「忙しい毎日だから、できるだけ家事や買い物の負担は減らしたい」
「子供が巣立った後の生活を考えると、車がなくても快適に過ごせる環境がいい」
そんな声に寄り添えるのがこの住まいの魅力です。
大通りから一本入った落ち着いた住宅地にありながら、豊橋駅方面や牟呂・田原方面へのアクセスも良好。バス停までは徒歩5分、バスに乗れば豊橋駅まで約10分と、車がなくても十分に移動が可能な便利な立地です。
周辺にはスーパーやコンビニが3~4分圏内にあり、ちょっとした買い物も楽々。本屋さんや映画館も近くに揃っているので、日々の暮らしに楽しみもプラスされます。
\ 担当者コメント /
間取りや価格帯に幅を持たせておりますので、単身の方からファミリー層、ご年配の方まで、ライフスタイルやご希望に合わせてお選びいただけます。
また交通アクセスが良好で、スーパーやコンビニなどの生活施設も徒歩圏内に揃っているため、将来車を使わなくなった場合でも安心してお住まいいただける環境です。ですので、「老後の暮らしに不安がある...」という方にも、自信をもっておすすめできます。
そして、お子さまが巣立った後も“帰ってくる場所”があることは、ご家族にとって大きな安心につながります。今の暮らしはもちろん、この先のライフステージの変化にも対応できる住まいをお探しの方に、ぴったりの分譲地です!
□□周辺環境□□
・豊鉄バス「汐田橋」停 徒歩5分
・福岡小学校 徒歩14分
・南部中学校 徒歩25分
・企業誘導型保育園 Ho:ppe 徒歩5分
・豊橋市立中央図書館 徒歩11分
・ファミリーマート 徒歩3分
・ヤマナカ 徒歩4分
・DCM 豊橋汐田橋店 徒歩6分
・TSUTAYA 汐田橋店 徒歩5分
・清水内科 徒歩8分 など
□□建物について□□
AVANTIAが自信を持ってお届けする
【AVANTIA01(ゼロワン)】シリーズ。
一年を通じて快適に暮らせる性能や安心して暮らせる構造、
奇をてらわず家族に長く寄り添う間取りやデザイン。
理想の我が家を実現するために、
最高の程よさで最良の住まいを
「AVANTIA01」がカタチにします。
\ AVANTIA01は、『ZEH水準の家』 /
2030年にはZEH水準の省エネ住宅が、
新築住宅の基準になる予定ですが、
AVANTIA01は既にZEH水準の家をご提供しております!
安心で快適な暮らしの質を高めてくれる、優れたスペック▽
■シンプルなデザインと上質な素材や機能性な建物設備
■AVNTIAは、住宅性能表示制度最大6項目で最高等級取得
■建築物省エネルギー性能表示制度「BELS」取得
ZEH水準のAVANTIA01の家ならエネルギーの使用量を
削減でき日々の光熱費を抑えることができるほか、
初期費用についてもお得な優遇措置が用意されています!
時代が求めるサステナブルで暮らしやすい住まいを追求し、
進化したAVANTIAの01シリーズ。
その他AVANTIA01についての詳細はAVANTIAブランドサイト
【 AVANTIA01の商品説明 】メニューをご覧ください!
ロケーション
性能
BELSとは「建築物省エネルギー性能表示制度」のことで、新築・既存の建築物の省エネ性能を、第三者評価機関が評価し認定する制度です。取得した家での暮らしは電気代の節約ができるだけでなく、住宅ローン減税や、国や自治体の省エネ住宅に対する補助金などを活用することもできます。
ZEH水準(等級5)の高い断熱性能を取得。AVANTIA01の家は『夏涼しく、冬暖かい。』住む人にも環境にも優しい住宅です。※参考:愛知県のZEH強化外皮基準(Ua≦0.6)
※Ua値(W/㎡・K)とは住宅の断熱性能を示す指標で、値が小さいほど熱が逃げにくく、断熱性能が高いことを表します。建物の各部位から逃げる熱を合計し、外皮面積で割って求めます。外皮とは、熱的に境界となる外壁・天井・屋根・窓・ドアなどを差します。
太陽光のエネルギーで電気を創る太陽光発電システムと、創った電気を効率よく使うためのクラウドHEMS、そして大切なエネルギーを無駄にしない省エネアイテムを採用し、環境へ配慮しながら毎月のランニングコストが抑えられます。
設備



底面は傷が目立ちにくく、奥行きワイドなステンレスシンク。小物置き付きでシンク周りの小物をすっきり収納できます。ストック類や普段使わないものを分類できる機能的な収納のキャビネットはソフトクローズレール仕様で静かにピタッと閉まる、安全な引き出し。






毎日使うハブラシなどの衛生用品や化粧品など、細かなものをそれらのきちんと収納できるミラーキャビネットはLEDライトでお顔映りもバッチリ。またキレイアップ水栓は、水栓が上部にあるので周りに水がたまりにくく、水滴を拭き取るだけで簡単キレイ。






水滴にたっぷりの空気を含ませることで、ボリュームのある浴び心地と節水の両立を実現したシャワーヘッド。特殊な表面処理で汚れが付きにくく落としやすい床は、独自の断熱層で寒い季節でも冷たく感じにくいキレイサーモフロア。取り外して洗える便利なマグネットシェルフも採用しています。






手洗いは吐水口とボウルが滑らかにつながったデザイン。便座もシームレスで便座裏には防汚素材を使用し、お掃除のしやすいフチのないデザインとなっています。また、パワーストリーム洗浄で強力な水流が便器鉢の中のすみずみまでしっかりと回り、少ない水で高い洗浄力を発揮します。






インターネットとモノを繋げるIoTを採用。玄関ドア、電動シャッター、インターホン、給湯器など、毎日使う建材・設備機器との連携や、オプションでカメラや各種センサ等も同じアプリで連携でき便利で快適な暮らしを叶えます。



構造






アフターサービス
オーナー様の専用サポートコールセンターでは、24時間365日ご相談を受け付けております。当社のほか、提携業者やメーカーより、急なトラブルに対応できるスタッフ1名が駆けつけて対応措置を行います。特殊な工具や部品を必要としない30分以内の作業であれば、出張費用や対応措置への費用は一切いただきません。
AVANTIA 01は、地歴調査と地盤の専門業者が高度な地盤調査を行って、適切な地盤改良が行われた土地に建設されています。しかし、お引渡しから20年の間に地盤の歪みなどによる不同沈下で床が傾いてしまった、などの瑕疵によって建物が損害を受けた場合には、当社規定の保証をいたしております。
築10年以降で起こるのが、目に見えない部分の経年劣化。給排水管の劣化や破損による水漏れや、躯体の傷み・腐食、床下の傷みなどが考えられます。有償ですが、築10年目、20年目当社を通じて必要な補修・修復工事を行っていただくと、さらに10年間の保証期間が延長でき、最大30年まで安心が続きます。
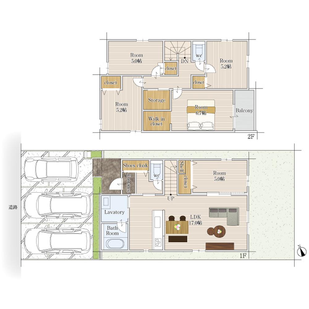
所在地/愛知県豊橋市西橋良町 総敷地面積/585.33m² (177.06坪) 敷地面積/123.31m² (37.30坪) 建物面積/106.01m² (32.06坪) 建ぺい率/60% 容積率/200% 地目/宅地 用途地域/第二種中高層住居専用地域 都市計画法/市街化区域 構造/木造2階建(在来工法) 道路/北東側幅員約5.7m、北西側幅員約4.6m~5.3mの公道に接する 駐車場/4台(普2台+軽2台) 建築確認番号/確認サービス第KS125-0420-50388号 施設/公営水道・都市ガス・中部電力・公共下水・側溝 ※一部引込費用は別途負担となります。 完成日/2025年8月12日 引渡し可能日/即入居可 その他/都市機能誘導区域外、居住誘導区域内、立地適正化計画区域、洪水浸水想定区域、高潮浸水想定区域、景観法、法22条区域 情報更新日/2025年11月13日 次回更新予定日/2025年11月27日
フォトギャラリー


間取り
号地詳細
| 所在地 | 愛知県豊橋市西橋良町 | ||
|---|---|---|---|
| 敷地面積 |
123.31m²
(37.30坪) |
建物面積 | 106.01m²
(32.06坪) |
| 総敷地面積 | 585.33m² (177.06坪) | 建ぺい率 | 60% |
| 容積率 | 200% | 地目 | 宅地 |
| 用途地域 | 第二種中高層住居専用地域 | 都市計画法 | 市街化区域 |
| 構造 | 木造2階建(在来工法) | 駐車場 | 4台(普2台+軽2台) |
| 道路 | 北東側幅員約5.7m、北西側幅員約4.6m~5.3mの公道に接する |
||
| 施設 | 公営水道・都市ガス・中部電力・公共下水・側溝 ※一部引込費用は別途負担となります。 | ||
| 建築確認番号 | 確認サービス第KS125-0420-50388号 | 取引態様 | 一般仲介 |
| 完成日 | 2025年8月12日 | 入居可能日 | 即入居可 |
| 売主 | 株式会社AVANTIA (国土交通大臣免許(6)第5803号) | ||
| その他 | 都市機能誘導区域外、居住誘導区域内、立地適正化計画区域、洪水浸水想定区域、高潮浸水想定区域、景観法、法22条区域 | ||
| 情報更新日 | 2025年11月13日 | 次回更新 予定日 |
2025年11月27日 |
※「-」と表示されている項目については、情報提供会社にご確認ください。
※「建物30年延長保証」、「建物20年延長保証」は引渡し10年目ごとに有償点検を行い、必要な箇所に有償のメンテナンスの実施したお客様が対象になります。
所在地/愛知県豊橋市西橋良町 総敷地面積/585.33m² (177.06坪) 敷地面積/126.17m² (38.16坪) 建物面積/106.01m² (32.06坪) 建ぺい率/60% 容積率/200% 地目/宅地 用途地域/第二種中高層住居専用地域 都市計画法/市街化区域 構造/木造2階建(在来工法) 道路/北西側幅員約4.6m~5.3mの公道に接する 駐車場/3台(普2台+軽1台) 建築確認番号/確認サービス第KS125-0420-50389号 施設/公営水道・都市ガス・中部電力・公共下水・側溝 ※一部引込費用は別途負担となります。 完成日/2025年7月30日 引渡し可能日/即入居可 その他/都市機能誘導区域外、居住誘導区域内、立地適正化計画区域、洪水浸水想定区域、高潮浸水想定区域、景観法、法22条区域 情報更新日/2025年11月13日 次回更新予定日/2025年11月27日
フォトギャラリー







間取り
号地詳細
| 所在地 | 愛知県豊橋市西橋良町 | ||
|---|---|---|---|
| 敷地面積 |
126.17m²
(38.16坪) |
建物面積 | 106.01m²
(32.06坪) |
| 総敷地面積 | 585.33m² (177.06坪) | 建ぺい率 | 60% |
| 容積率 | 200% | 地目 | 宅地 |
| 用途地域 | 第二種中高層住居専用地域 | 都市計画法 | 市街化区域 |
| 構造 | 木造2階建(在来工法) | 駐車場 | 3台(普2台+軽1台) |
| 道路 | 北西側幅員約4.6m~5.3mの公道に接する |
||
| 施設 | 公営水道・都市ガス・中部電力・公共下水・側溝 ※一部引込費用は別途負担となります。 | ||
| 建築確認番号 | 確認サービス第KS125-0420-50389号 | 取引態様 | 一般仲介 |
| 完成日 | 2025年7月30日 | 入居可能日 | 即入居可 |
| 売主 | 株式会社AVANTIA (国土交通大臣免許(6)第5803号) | ||
| その他 | 都市機能誘導区域外、居住誘導区域内、立地適正化計画区域、洪水浸水想定区域、高潮浸水想定区域、景観法、法22条区域 | ||
| 情報更新日 | 2025年11月13日 | 次回更新 予定日 |
2025年11月27日 |
※「-」と表示されている項目については、情報提供会社にご確認ください。
※「建物30年延長保証」、「建物20年延長保証」は引渡し10年目ごとに有償点検を行い、必要な箇所に有償のメンテナンスの実施したお客様が対象になります。
所在地/愛知県豊橋市西橋良町 総敷地面積/585.33m² (177.06坪) 敷地面積/101.89m² (30.82坪) 建物面積/100.45m² (30.38坪) 建ぺい率/60% 容積率/200% 地目/宅地 用途地域/第二種中高層住居専用地域 都市計画法/市街化区域 構造/木造2階建(在来工法) 道路/北西側幅員約4.6m~5.3mの公道に接する 駐車場/2台(普1台+軽1台) 建築確認番号/確認サービス第KS125-0420-50390号 施設/公営水道・都市ガス・中部電力・公共下水・側溝 ※一部引込費用は別途負担となります。 完成日/2025年8月4日 引渡し可能日/即入居可 その他/都市機能誘導区域外、居住誘導区域内、立地適正化計画区域、洪水浸水想定区域、高潮浸水想定区域、景観法、法22条区域 情報更新日/2025年11月13日 次回更新予定日/2025年11月27日
フォトギャラリー





間取り
号地詳細
| 所在地 | 愛知県豊橋市西橋良町 | ||
|---|---|---|---|
| 敷地面積 |
101.89m²
(30.82坪) |
建物面積 | 100.45m²
(30.38坪) |
| 総敷地面積 | 585.33m² (177.06坪) | 建ぺい率 | 60% |
| 容積率 | 200% | 地目 | 宅地 |
| 用途地域 | 第二種中高層住居専用地域 | 都市計画法 | 市街化区域 |
| 構造 | 木造2階建(在来工法) | 駐車場 | 2台(普1台+軽1台) |
| 道路 | 北西側幅員約4.6m~5.3mの公道に接する |
||
| 施設 | 公営水道・都市ガス・中部電力・公共下水・側溝 ※一部引込費用は別途負担となります。 | ||
| 建築確認番号 | 確認サービス第KS125-0420-50390号 | 取引態様 | 一般仲介 |
| 完成日 | 2025年8月4日 | 入居可能日 | 即入居可 |
| 売主 | 株式会社AVANTIA (国土交通大臣免許(6)第5803号) | ||
| その他 | 都市機能誘導区域外、居住誘導区域内、立地適正化計画区域、洪水浸水想定区域、高潮浸水想定区域、景観法、法22条区域 | ||
| 情報更新日 | 2025年11月13日 | 次回更新 予定日 |
2025年11月27日 |
※「-」と表示されている項目については、情報提供会社にご確認ください。
※「建物30年延長保証」、「建物20年延長保証」は引渡し10年目ごとに有償点検を行い、必要な箇所に有償のメンテナンスの実施したお客様が対象になります。
所在地/愛知県豊橋市西橋良町 総敷地面積/585.33m² (177.06坪) 敷地面積/126.01m² (38.11坪) 建物面積/106.42m² (32.19坪) 建ぺい率/60% 容積率/200% 地目/宅地 用途地域/第二種中高層住居専用地域 都市計画法/市街化区域 構造/木造2階建(在来工法) 道路/北西側幅員約4.6m~5.3mの公道に接する 駐車場/3台(普2台+軽1台) 建築確認番号/確認サービス第KS125-0410-51625号 施設/公営水道・都市ガス・中部電力・公共下水・側溝 ※一部引込費用は別途負担となります。 完成日/2025年7月30日 引渡し可能日/即入居可 その他/都市機能誘導区域外、居住誘導区域内、立地適正化計画区域、洪水浸水想定区域、高潮浸水想定区域、景観法、法22条区域 情報更新日/2025年11月13日 次回更新予定日/2025年11月27日
フォトギャラリー






間取り
号地詳細
| 所在地 | 愛知県豊橋市西橋良町 | ||
|---|---|---|---|
| 敷地面積 |
126.01m²
(38.11坪) |
建物面積 | 106.42m²
(32.19坪) |
| 総敷地面積 | 585.33m² (177.06坪) | 建ぺい率 | 60% |
| 容積率 | 200% | 地目 | 宅地 |
| 用途地域 | 第二種中高層住居専用地域 | 都市計画法 | 市街化区域 |
| 構造 | 木造2階建(在来工法) | 駐車場 | 3台(普2台+軽1台) |
| 道路 | 北西側幅員約4.6m~5.3mの公道に接する |
||
| 施設 | 公営水道・都市ガス・中部電力・公共下水・側溝 ※一部引込費用は別途負担となります。 | ||
| 建築確認番号 | 確認サービス第KS125-0410-51625号 | 取引態様 | 一般仲介 |
| 完成日 | 2025年7月30日 | 入居可能日 | 即入居可 |
| 売主 | 株式会社AVANTIA (国土交通大臣免許(6)第5803号) | ||
| その他 | 都市機能誘導区域外、居住誘導区域内、立地適正化計画区域、洪水浸水想定区域、高潮浸水想定区域、景観法、法22条区域 | ||
| 情報更新日 | 2025年11月13日 | 次回更新 予定日 |
2025年11月27日 |
※「-」と表示されている項目については、情報提供会社にご確認ください。
※「建物30年延長保証」、「建物20年延長保証」は引渡し10年目ごとに有償点検を行い、必要な箇所に有償のメンテナンスの実施したお客様が対象になります。
また、キッチン横には大容量のパントリーも完備。可動棚付きの広々とした設計で、食品やキッチン用品を“見せる収納”として美しく陳列できます。まるでお店のように整理できるので、どこに何があるのか一目でわかり、使い勝手の良さも抜群です。